Prio 129 Traditionell
Einstöckiges Haus im klassischen Stil für die kleinere Familie
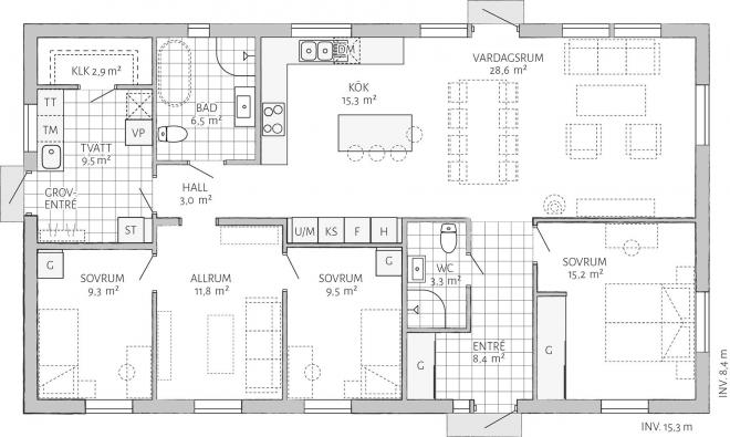
Ein einladender Eingang verleiht dem Prio 129 Traditional ein Gefühl von Sicherheit und schwedischem Architekturerbe. Der Prio 129 ist perfekt für die kleinere Familie. Es ist auch wirklich gut für diejenigen unter Ihnen, die heute in einem großen Haus leben und davon träumen, weniger Räume zu reinigen, aber dennoch viel Platz für gesellschaftliche Veranstaltungen zu haben. Wenn Sie sich für ein Walmdach entscheiden, erhalten Wohnzimmer und Küche ein noch größeres Raumgefühl!


