Solängen
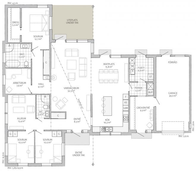
Ein neues, großes, eingeschossiges Haus im Baustil der Funkis – den revolutionären Bauwerken der ’60er Jahre des letzten Jahrhunderts. Solängen ist ein Meisterwerk moderner schwedischer Architektur mit einer ausdrucksstarken klaren Linienführung. Der harmonische Gesamteindruck bestimmt nicht nur das Äußere des Gebäudes, sondern setzt sich auch in dem eleganten Inneren des Hauses fort. Das Entree von Solängen ist designbestimmend und durch eine Überdachung geschützt.


