Rosenhill
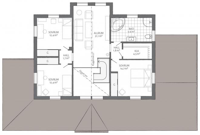
Rosenhill ist eine Hommage an den amerikanischen Kolonialbaustil, mit eindrucksvoller Frontveranda die sich bis in den Giebelbereich erstreckt. Bei dem im „Country-Style“ geplanten Farmhausentwurf wurden alle wesentlichen historischen Stilmerkmale übernommen. Obwohl das Haus ohne Flure auskommt, ist es gelungen, Diele, Küche und den großen Hauswirtschaftsraum mit Garage auf elegante Weise miteinander zu verbinden. Die Deckenhöhe von 2,60 Metern (nur bei Thermofundamenten) bietet ein optimales Raumgefühl und der offene Grundriss sorgt für ein lichtdurchflutetes Haus.


