Björkenäs
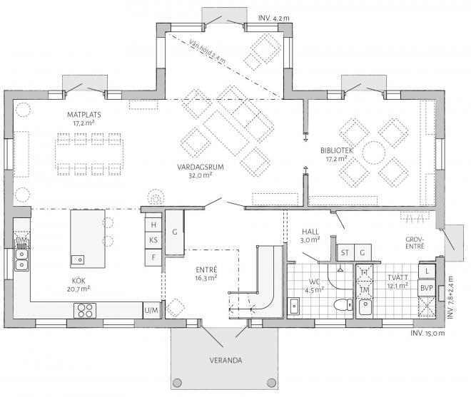
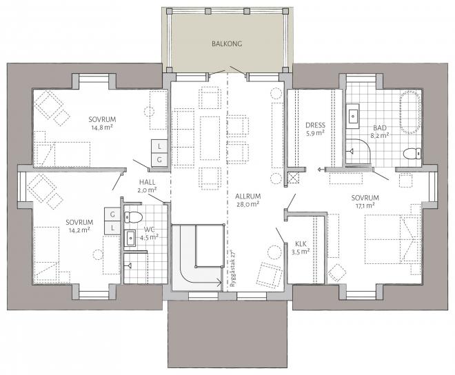
Björkenäs ist ein exklusives, luxuriöses und äußerst funktionsfähiges Landhaus. Die Architektur des Hauses ist von klassischen schwedischen Herrenhäusern inspiriert. Besonders charakteristisch sind das steil abfallende Satteldach mit gewölbten Giebeln und die robusten, zeitgemäßen Säulen, die das elegante Eingangsportal stützen. Die Deckenhöhe im Erdgeschoss beträgt großzügige 2,6 Meter.


