Rosenfors
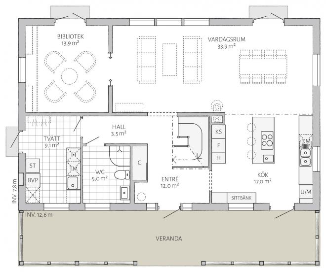
Angelehnt an die Architektur der amerikanischen Südstaaten, weisen die Frontveranda und die auf fallenden Gauben des Dachbereiches, auf den beliebten Southern Country Style hin. Miteinbezogen in die Planung wurde eine Garage, die mit dem Haus verbunden ist. Mit einer Gesamtwohnfläche von 176 m² avanciert dieser Entwurf zu einem perfekten Familienhaus.


