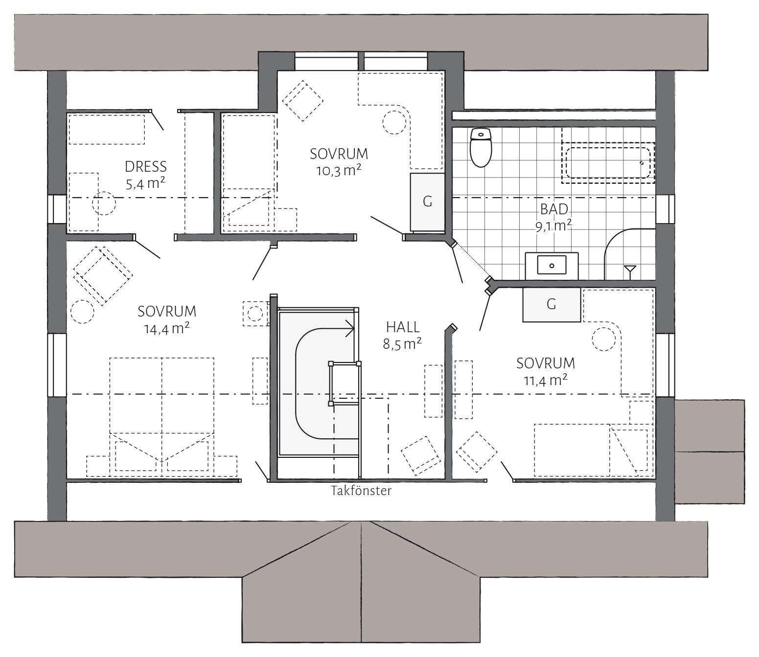
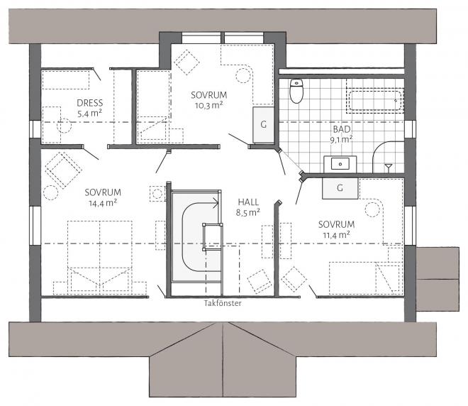
Knutstorp
Charakteristisch für dieses große exklusive Haus ist die mittig konstruierte Gaube. Die Frontveranda ist nicht nur ein außerordentlicher Blickfang, sondern auch eine Sitzgelegenheit unter freiem Himmel. Ein originelles Landhaus im typisch schwedischen Stil, das mit seinen kompakten Abmessungen auch für kleinere Grundstücke geeignet ist.


